Moin Togehter,
nun habe ich schon viel im Forum gelesen, wie einfach es ist ein Tokico Bremssattel an einen Shovel zu bauen. Nun möchte ich es auch machen, mir fehlen leider die Kenntnisse wie ich da vorgehe.
Mit Hilfe der Suchmachine habe ich viele Beitragen gefunden, leider ohne Fotos.
Ich habe wirklich kein blasser Schimmer wie zb so eine Adapterplatte auszusehen hat und wie stark der sein muß? Wird der Bremssattel schwimmend oder fest montiert? Wie gross muß die Bremsscheibe sein und muß die schwimmend oder fest sein? welche evo Bremsscheibe passt?
Das ganze soll an eine 76er FLH Gabel montiert werden. Wenn mich jemand mit Informationen und Fotos helfen kann, wäre ich super glücklich.
Cheers...Rick
Wie montiere ich eine Tokico Bremssattel an einen FLH Gabel?
Moderator: Gerry
- Don Rocket
- Beiträge: 1791
- Registriert: 14.08.2012, 12:47
- Wohnort: Paris
Re: Wie montiere ich eine Tokico Bremssattel an einen FLH Ga
Hi Rick,
es gibt wie immer viele Moeglichkeiten, die einfachste ist, dich mit mehreren Stuecken hartem Karton oder Holz langsam an die ideale Adapterform anzunaehern, indem du den Sattel an die Scheibe haelst und dann die Pappe oder das Holz so lange mit Schere, Messer, Stemmeisen, Raspel, etc. bearbeitest, bis du ein Muster hast, dass du dann auf der Fraese oder im Schraubstock per Hand aus geeignetem Material nachbauen kannst.
Hier ein paar Grundregeln:

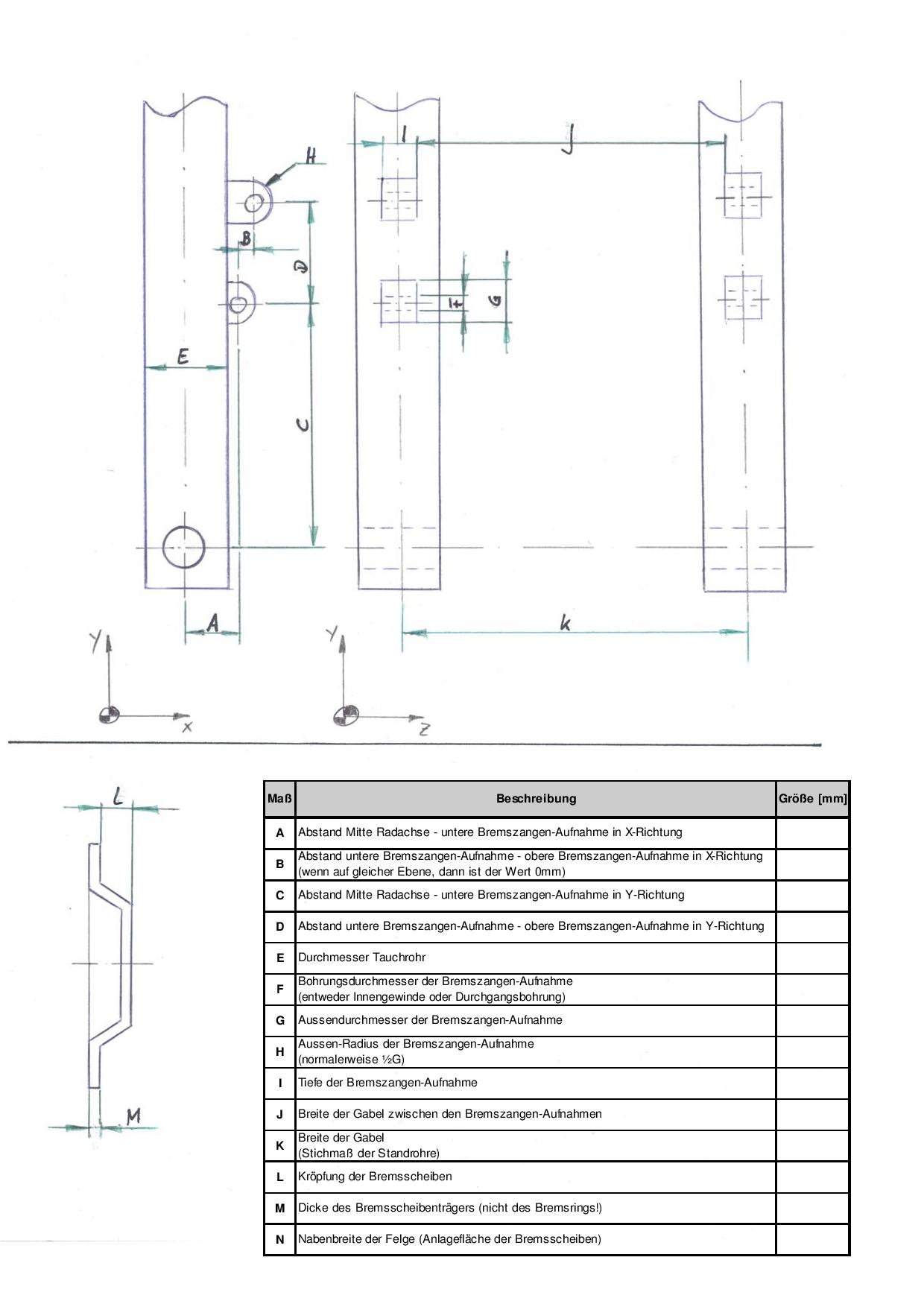
Mite in bisschen Rechnerei kannst du damit schon mal die axialen Maße sehr genau bestimmen.
Ich habe vor langer Zeit mal die Tokico Saettel mit 90mm Stichmaß der Befestigungsbohrungen vermessen und die Maße in Bezug zu einer 310 und 320mm großen Bremsscheibe gesetzt.


Wenn du ein bisschen mit Winkelfunktionen umzugehen weisst, kannst du dir die Maße jetzt fuer jeden beliebigen Bremsscheibendurchmesser ausrechnen.
Viel Spaß beim Rechnen
Dieter
es gibt wie immer viele Moeglichkeiten, die einfachste ist, dich mit mehreren Stuecken hartem Karton oder Holz langsam an die ideale Adapterform anzunaehern, indem du den Sattel an die Scheibe haelst und dann die Pappe oder das Holz so lange mit Schere, Messer, Stemmeisen, Raspel, etc. bearbeitest, bis du ein Muster hast, dass du dann auf der Fraese oder im Schraubstock per Hand aus geeignetem Material nachbauen kannst.
Hier ein paar Grundregeln:
- Material: Ich benutze am liebsten AlZnMgCu1.5 welches eine ausreichende Festigkeit hat und bis jetzt noch immer vom TUV durchgewunken wurde.
Materialstaerke: Um absolut auf der sicheren Seite zu sein und den Mann vom TUV zufrieden zu stellen, solltest du nicht unter 10mm gehen.
Gestaltung: Wo moeglich, solltest du Ecken und Kanten mit Radien versehen um Kerbwirkung zu vermeiden.
Der Sattel sollte exakt mittig zur Scheibe ausgerichtet sein und so nahe moeglichst nahe am Tauchrohr angebracht werden (Stichwort: Kraefte unnoetig spazieren fuehren).
Ausserdem muss sichergestellt sein, dass die Scheibe im Radius wenigstens einen Millimeter ueber die Belaege herausragt, damit diese voll tragen. Ist das nicht der Fall, bildet sich mit der Zeit am oberen Belagende ein Rand, der irgendwann dafuer sorgt, dass die Belaege nicht mehr gegen die Scheibe, sondern irgendwann nur noch Rand and Rand drueckt.

Mite in bisschen Rechnerei kannst du damit schon mal die axialen Maße sehr genau bestimmen.
Ich habe vor langer Zeit mal die Tokico Saettel mit 90mm Stichmaß der Befestigungsbohrungen vermessen und die Maße in Bezug zu einer 310 und 320mm großen Bremsscheibe gesetzt.


Wenn du ein bisschen mit Winkelfunktionen umzugehen weisst, kannst du dir die Maße jetzt fuer jeden beliebigen Bremsscheibendurchmesser ausrechnen.
Viel Spaß beim Rechnen
Dieter
Chrome won't bring you home
- Don Rocket
- Beiträge: 1791
- Registriert: 14.08.2012, 12:47
- Wohnort: Paris
Re: Wie montiere ich eine Tokico Bremssattel an einen FLH Ga
... noch was zum Thema: Schwimmsaettel werden idR. mit festen Scheiben, Festsaettel mit schwimmenden Scheiben kombiniert.
Frueher hat man Festsaettel mit starren Scheiben verbaut, heute macht man das eigentlich nur noch bei kleinen Motorraedern.
Die Kombination Schwimmsattel zu schwimmender Scheibe habe ich noch nicht gesehen und macht technisch auch gar keinen Sinn.
Cheers
Dieter
Frueher hat man Festsaettel mit starren Scheiben verbaut, heute macht man das eigentlich nur noch bei kleinen Motorraedern.
Die Kombination Schwimmsattel zu schwimmender Scheibe habe ich noch nicht gesehen und macht technisch auch gar keinen Sinn.
Cheers
Dieter
Chrome won't bring you home
Re: Wie montiere ich eine Tokico Bremssattel an einen FLH Ga
à la bonne heure Dieter, Merci bien! Ce Sera fantastique, je être emballé par!
Hiermit werde ich garantiert viel und viel weiter kommen, falls du noch ein Beispiel-foto hast gerne.
Nochmals vielen dank!!!
Salut...Eric
Hiermit werde ich garantiert viel und viel weiter kommen, falls du noch ein Beispiel-foto hast gerne.
Nochmals vielen dank!!!
Salut...Eric
Re: Wie montiere ich eine Tokico Bremssattel an einen FLH Ga
vor lauter freude habe ich irgendwie 2 x die gleiche nachricht rausgejagt
- Don Rocket
- Beiträge: 1791
- Registriert: 14.08.2012, 12:47
- Wohnort: Paris
Re: Wie montiere ich eine Tokico Bremssattel an einen FLH Ga
Kein Thema, freut mich, wenn ich helfen kann, aber kann es sein, dass dein franzoesisch etwas eingerostet ist, oder war das der Google UebersetzerRick hat geschrieben:à la bonne heure Dieter, Merci bien! Ce Sera fantastique, je être emballé par!
Rick hat geschrieben:Hiermit werde ich garantiert viel und viel weiter kommen, falls du noch ein Beispiel-foto hast gerne.
Kein Thema, ich habe mal eine Tolle Gabel mit Sportster Vorderrad, 320mm Scheiben und 6-Kolben Zangen kombiniert.
Wie du siehst haben Nissin und Tokico die gleichen Aufnahmen, zumindest was die 90mm Variante angeht.
Die Bremssattelaufnahme der Tolle Gabel ist allerdings etwas speziell, weil sie nicht, wie die meisten Gabeln angegossenene Befestigungsohren hat, sondern die Adapter an der Innenseite mit den Tauchrohren verschraubt werden.
Falls jemand italienische Bremsen bevorzugt, die Geometrie saemtlicher Brembo Zangen findet man auf der Seite von Stein Dinse.
Gruß
Dieter
Chrome won't bring you home
Re: Wie montiere ich eine Tokico Bremssattel an einen FLH Ga
Hej Dieter,
merde, da bin ich aufgeflogen.... mein Fransösisch ist in der tat un petit peu eingerostet und auf google ist auch kein verlass.....
Nochmals vielen dank für deine hilfe! Ist es auch mit eine 10" bremsscheiben möglich, oder ist 11,5" pflicht? Wie ich sehe wird die Bremssbacke fest verschraubt und schwimmt die Scheibe. Sieht wirklich klasse aus.
Salut...Eric
merde, da bin ich aufgeflogen.... mein Fransösisch ist in der tat un petit peu eingerostet und auf google ist auch kein verlass.....
Nochmals vielen dank für deine hilfe! Ist es auch mit eine 10" bremsscheiben möglich, oder ist 11,5" pflicht? Wie ich sehe wird die Bremssbacke fest verschraubt und schwimmt die Scheibe. Sieht wirklich klasse aus.
Salut...Eric
- Don Rocket
- Beiträge: 1791
- Registriert: 14.08.2012, 12:47
- Wohnort: Paris
Re: Wie montiere ich eine Tokico Bremssattel an einen FLH Ga
Hi Eric,
ob das auch mit 10" Scheiben, kann ich nicht sagen, koennte bei einer 6-Kolben Zange eng werden. Da musst du mal die Scheibe in die Zange legen und gucken, ob du eine Position findest, in der die Belaege die Scheibe vollstaendig ueberdecken. Die Zangen wurden ja fuer Scheibendurchmesser >300mm konstruiert, dass heisst, es fehlen im Radius etwa 25mm, à vérifier.
Bei Sport- und Tourenmotorraedern findet man heute ausschliesslich die Kombination Festsattel / schwimmende Scheibe. Schwimmsaettel werden eigentlich nur an leichten Maschinen und Enduros verwendet, deshalb rate ich zur erstgenannten Kombination. Ausserdem ist es ein ziemliches Geficke einen schwimmenden Sattel an eine andere Maschine zu adaptieren, weil ein Schwimmsattel immer aus Halter und dem Sattel selber besteht. Der Halter bildet gleichzeitig die Aufnahme der Lagerung und diese Aufnahme muesste dann auf den zu fertigenden Adapter uebertragen werden - viel zu viel Arbeit!
Wenn du starre Bremsscheiben hast, kannst du diese auch mit Festsaetteln kombinieren, wichtig ist nur, dass die Scheiben sowie deren Anlageflaeche an der Felge genau plan sind und keinen Schlag haben, sonst wirst du immer ein Pulsieren im Bremshebel spueren. Dieser Effekt macht sich umso staerker bemerkbar, je groesser die Belagflaeche ist. Selbst wenn du vorher mit den Standard 2-Kolbensaetteln diesbezueglich kein Theater hattest, kann es sein, dass du mit 4-Kolben bereits Probleme bekommst.
Ausserdem solltest du bedenken, dass ein moderner Bremssattel eine 10" Chinascheibe problemlos ueber die Belastungsgrenze bringen kannst. Ich hatte schon Scheibe, die sahen aus wie Suppenschuesseln, weil sie die Waermeenergie nicht abfuehren konnten.
Du kannst es ja mal darauf ankommen lassen, aber ein Satz schwimmende Scheiben z.B. von Braking sind immer eine gute Wahl (es sei denn man steht auf Vintage, aber dann baut man sich solch modernes Geraffel eh nicht ans Mopped, sondern faehrt Trommel).
Bon courage!
Dieter
ob das auch mit 10" Scheiben, kann ich nicht sagen, koennte bei einer 6-Kolben Zange eng werden. Da musst du mal die Scheibe in die Zange legen und gucken, ob du eine Position findest, in der die Belaege die Scheibe vollstaendig ueberdecken. Die Zangen wurden ja fuer Scheibendurchmesser >300mm konstruiert, dass heisst, es fehlen im Radius etwa 25mm, à vérifier.
Bei Sport- und Tourenmotorraedern findet man heute ausschliesslich die Kombination Festsattel / schwimmende Scheibe. Schwimmsaettel werden eigentlich nur an leichten Maschinen und Enduros verwendet, deshalb rate ich zur erstgenannten Kombination. Ausserdem ist es ein ziemliches Geficke einen schwimmenden Sattel an eine andere Maschine zu adaptieren, weil ein Schwimmsattel immer aus Halter und dem Sattel selber besteht. Der Halter bildet gleichzeitig die Aufnahme der Lagerung und diese Aufnahme muesste dann auf den zu fertigenden Adapter uebertragen werden - viel zu viel Arbeit!
Wenn du starre Bremsscheiben hast, kannst du diese auch mit Festsaetteln kombinieren, wichtig ist nur, dass die Scheiben sowie deren Anlageflaeche an der Felge genau plan sind und keinen Schlag haben, sonst wirst du immer ein Pulsieren im Bremshebel spueren. Dieser Effekt macht sich umso staerker bemerkbar, je groesser die Belagflaeche ist. Selbst wenn du vorher mit den Standard 2-Kolbensaetteln diesbezueglich kein Theater hattest, kann es sein, dass du mit 4-Kolben bereits Probleme bekommst.
Ausserdem solltest du bedenken, dass ein moderner Bremssattel eine 10" Chinascheibe problemlos ueber die Belastungsgrenze bringen kannst. Ich hatte schon Scheibe, die sahen aus wie Suppenschuesseln, weil sie die Waermeenergie nicht abfuehren konnten.
Du kannst es ja mal darauf ankommen lassen, aber ein Satz schwimmende Scheiben z.B. von Braking sind immer eine gute Wahl (es sei denn man steht auf Vintage, aber dann baut man sich solch modernes Geraffel eh nicht ans Mopped, sondern faehrt Trommel).
Bon courage!
Dieter
Chrome won't bring you home